Mehrfamilienhaus mit Gaststätte, 6 Einheiten und Wertsteigerungschance !!!
Beschreibung:
Diese Immobilie ist mehr als ein klassisches Bestandsobjekt. Sie bietet Kapitalanlegern eine Kombination aus laufenden Einnahmen, strategischem Entwicklungsspielraum und langfristiger Perspektive.Mehrere Wohneinheiten, eine vermietete Gewerbefläche im Erdgeschoss sowie eine aktuell freie Einheit schaffen eine solide Ausgangsbasis. Die bestehenden Mieten bewegen sich auf moderatem Niveau und eröffnen Potenzial für Optimierung im Rahmen der gesetzlichen Möglichkeiten. Zusätzlich bietet die klare Einheitenstruktur perspektivisch interessante Optionen für Investoren, die über zukünftige Aufteilungsmöglichkeiten nachdenken, selbstverständlich vorbehaltlich der rechtlichen Voraussetzungen.
Ein Objekt für Anleger, die nicht nur kaufen, sondern entwickeln möchten.
Energieausweis Wohnbereich
Art Bedarfsausweis
Endenergiebedarf 236,9 kWh pro m² und Jahr
Energieeffizienzklasse G
Wesentlicher Energieträger Erdgas
Gültig bis 18.02.2036
Energieausweis Gewerbebereich
Art Bedarfsausweis
Endenergiebedarf Wärme 625,1 kWh pro Quadratmeter und Jahr
Endenergiebedarf Strom 45,6 kWh pro Quadratmeter und Jahr
Wesentlicher Energieträger Erdgas
Gültig bis 18.02.2036
Ein ausführliches Exposé mit sämtlichen Unterlagen und Wirtschaftsdaten erhalten Sie gerne nach vollständiger Anfrage.
Lagebeschreibung:
Die Immobilie befindet sich in zentraler Lage von Göppingen, einer etablierten Kreisstadt mit rund 58.000 Einwohnern im wirtschaftsstarken Landkreis Göppingen. Die Stadt profitiert von ihrer verkehrsgünstigen Anbindung im Großraum Stuttgart und stellt einen gefragten Wohn und Gewerbestandort dar.Göppingen verfügt über eine sehr gute Infrastruktur mit Einkaufsmöglichkeiten, Gastronomie, Ärzten, Schulen sowie sämtlichen Einrichtungen des täglichen Bedarfs. Mehrere Kindergärten, Grundschulen, Realschulen und Gymnasien befinden sich im Stadtgebiet. Auch die Hochschule Esslingen ist in erreichbarer Nähe.
Die Verkehrsanbindung ist als gut zu bewerten. Über die Bundesstraße B10 besteht eine schnelle Verbindung nach Stuttgart und Ulm. Der Bahnhof Göppingen bietet eine Anbindung an den Regional und Fernverkehr. Dadurch ist die Stadt auch für Berufspendler attraktiv.
Die Kombination aus gewachsener Infrastruktur, wirtschaftlicher Stabilität und kontinuierlicher Wohnraumnachfrage sorgt für eine nachhaltige Vermietbarkeit der Einheiten. Gerade gemischt genutzte Objekte profitieren in dieser Lage von einer stabilen Nachfrage sowohl im Wohn als auch im Gewerbebereich.
Für Kapitalanleger bietet die Mikrolage eine solide Grundlage für langfristige Vermietung sowie strategische Weiterentwicklung.
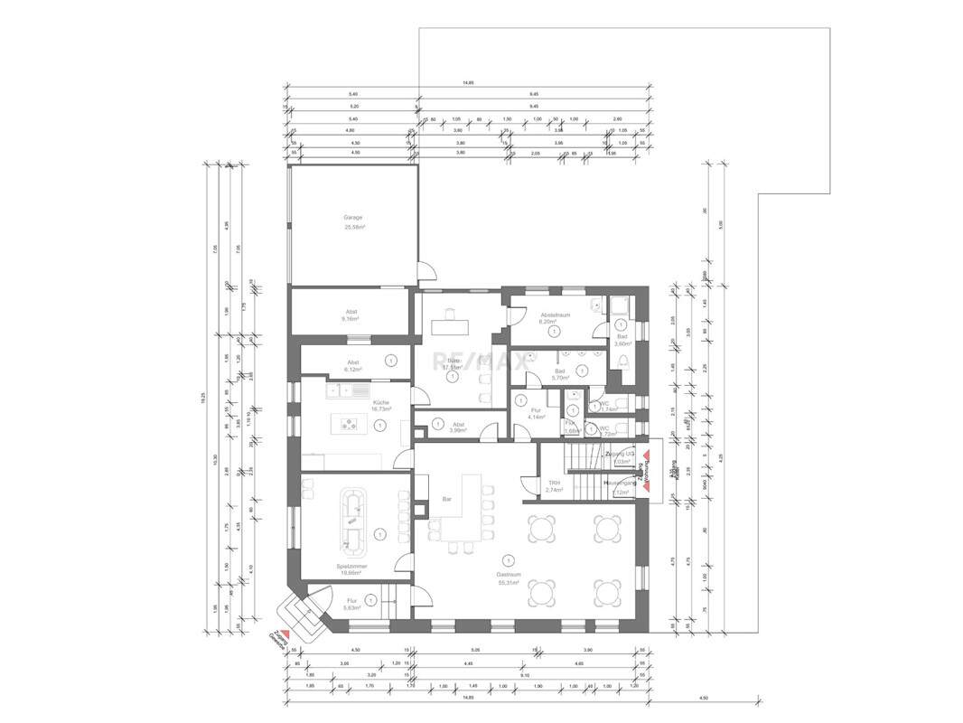
Ausstattung:
Energieausweis:
- A+
- A
- B
- C
- D
- E
- F
- G
- H
- Year of construction:
- 1897
- Final energy demand:
- 236,9 kWh/(m²a)
- Energy certificate:
- Requirement-oriented certificate
- Energy efficiency class:
- G
- Energy certificate valid until:
- 18.02.2036
- Main energy source:
- Gas
- Year of construction according to energy certificate:
- 1897
Ausstattungsbeschreibung:
Gaszentralheizung, Wärmeerzeuger erneuert im Jahr 2020Fenster im Jahr 2011 weitestgehend erneuert
Doppelgarage in Stahlbetonfertigbauweise sowie ein zusätzlicher Stellplatz
Drei Einbauküchen und vollständiges Interieur der Gaststätte im Eigentum der Verkäuferin
Sonstige Angaben:
Folgende Kosten sind im Kaufpreis nicht enthalten und vom Käufer zusätzlich zu entrichten: Notar- und Grundbuchkosten (ca. 2 %), Grunderwerbsteuer (5 %), und die mit der Finanzierung entstehenden Kosten. 4,76 % Maklerprovision inkl. gesetzlicher MwSt.. Ab dem Zeitpunkt der Übergabe hat der Käufer die Grundsteuer zu tragen.Irrtümer vorbehalten. Die Objektdaten beruhen auf Angaben und Unterlagen, die uns vom Veräußerer zur Verfügung gestellt wurden. Für inhaltliche Richtigkeit und Vollständigkeit übernehmen wir keine Haftung. Eine Weitergabe an Dritte ist nicht gestattet.
---
Verpassen Sie keine Immobilie mehr!
Unser komplettes Immobilienangebot finden Sie immer zuerst auf www.remax.de
Gerne helfen wir Ihnen auch beim Verkauf oder der Vermietung Ihrer Immobilie.
Karriere bei REMAX?
Infos: www.remax.de/karriere
Sie wollen mehr erfahren?
Wenn Sie uns eine Nachricht über das Kontaktformular senden, melden wir uns schnellstmöglich bei Ihnen:




























